Home
Anreise
Lagerhaus
Küche
Schlafzimmer
Sanitäre Anlagen
Speisesaal
Freizeiträume
Aussenbereich
Grundrisse & wichtige Infos
Impressionen
Buchungsanfrage
Belegungsplan
Preisliste
Kontakt
Dokumente
Links
Kiwilodge Parpan
Dorfverein Trans
Cadosch Reisen
Home
Anreise
Lagerhaus
Küche
Schlafzimmer
Sanitäre Anlagen
Speisesaal
Freizeiträume
Aussenbereich
Grundrisse & wichtige Infos
Impressionen
Buchungsanfrage
Belegungsplan
Preisliste
Kontakt
Dokumente
Links
Kiwilodge Parpan
Dorfverein Trans
Cadosch Reisen
Lagerhaus
Grundrisse & wichtige Infos
Grundrisse
Downloads
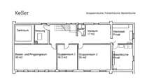
Grundrisse
Auf den Grundrissen sind für die Einteilung der Zimmer die jeweiligen Schlafplätze aufgeführt.
Grundrisse Trans.pdf
Adobe Acrobat Dokument
828.2 KB
Download
Nach oben scrollen
zuklappen